Transaction Type
Lease
All
Sale
SubLease
Exclude
All
Only
Investment Sale
Exclude
All
Only
Property Type
Size
Available Space
Land Size
Acres
SF
Price
Lease Rate PSF
Sale Price
Total
Per SF
Per Acre
Country
-
United States
-
Canada
-
Australia
Availability Details
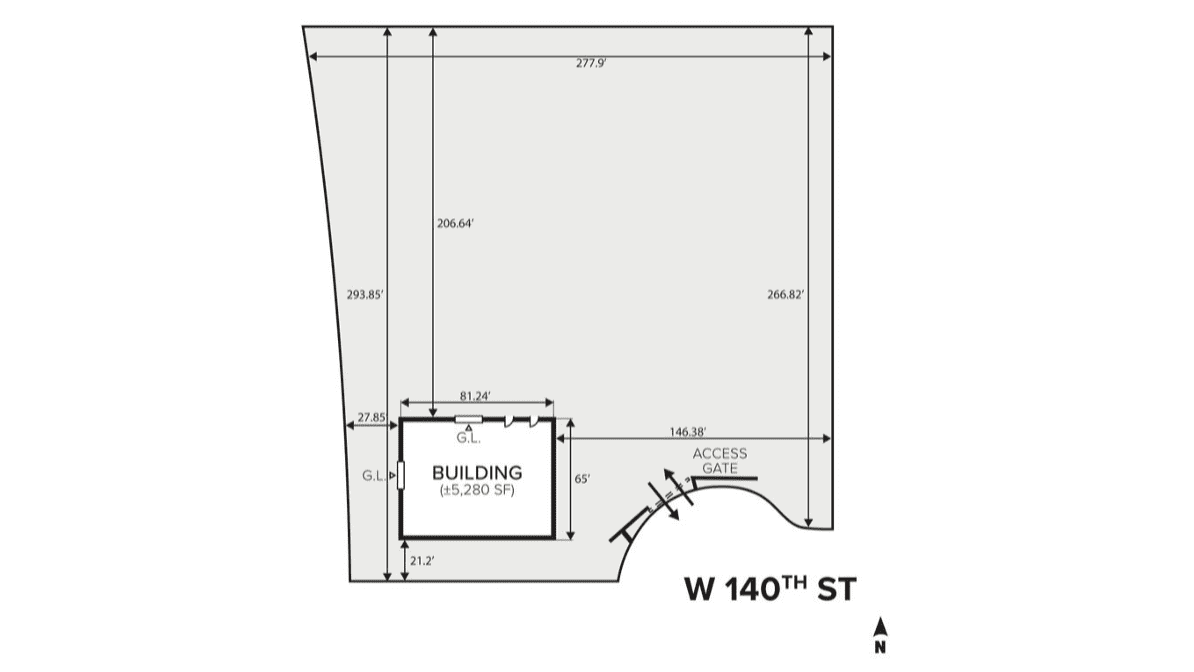
Land for Lease - Los Angeles, California Major Freeway Frontage
For Lease




- 95,383 SFAvailable Space
- 95,383 SFDivisible Space
- 2.190 AcresLand Size Acres
- 95,383 SFLand Size SF
Availability Highlights
- Major Freeway Frontage
- Functional Tilt-Up Building with Huge Yard
- Paved, Fenced and Lit
- Heavy Zoning
- Close Proximity to Port and Arterial Roads
601 W 140th Street 601 W 140th St, Los Angeles, CA, 90248
Request Pricing
- Lease Type: Gross
Site Details
- APN Number: 6132-006-018
- Census: 291130
- Legal: TRACT NO 22892 LOT 1
- Zoning: M2
Utilities
- Gas
- Service: Yes
- Water
- Service: Yes
- Sanitation
- Service: Yes
Links Powered by SlickCactus™